電話でのお問い合わせは0739-20-6815
〒646-0002 和歌山県田辺市上万呂5‐24
| 名称 | 南新万戸建 | |
|---|---|---|
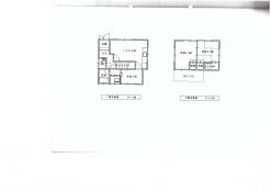
| 外観・間取り図 | ![]()
|
|
| 位置図 | ||
| 所在地 | 田辺市南新万6番 | |
| 交 通 | JR紀伊田辺駅までバスで約8分 南新万バス停まで徒歩約2分 | |
| 敷地面積 | 112.59u(34.05坪) | |
| 価 格 | 600万円 | |
| 間取り | 3LDK | |
| 建物面積 | 60.91u(18.42坪) 1階:37.63u 2階:23.28u | |
| 駐車場 | 有 | |
| 築年月 | 昭和60年3月 | |
| 構 造 | 木造スレート葺2階建 | |
| 土地権利 | 所有権 | |
| 地 目 | 宅 地 | |
| 都市計画 | 区域内 | |
| 建ぺい率 | 60% | |
| 容積率 | 200% | |
| 接道状況 | 北側公道 幅員約5.9m 間口約8m | |
| 設 備 | 水道:公営 電気:関西電力 排水:浄化槽 ガス:プロパン | |
| 取引態様 | 仲 介 | |
| 備 考 | ※東部小学校まで約438m | |
| お問合せ先 | 岡田不動産 URL E-mail: 〒646-0002 和歌山県田辺市上万呂5-24 TEL 0739-20-6815 FAX 0739-20-4370 |
|