| 名称 |
東陽戸建 |
|
| 外観・間取り図 |
 |
 |
| 位置図 |
|
| 所在地 |
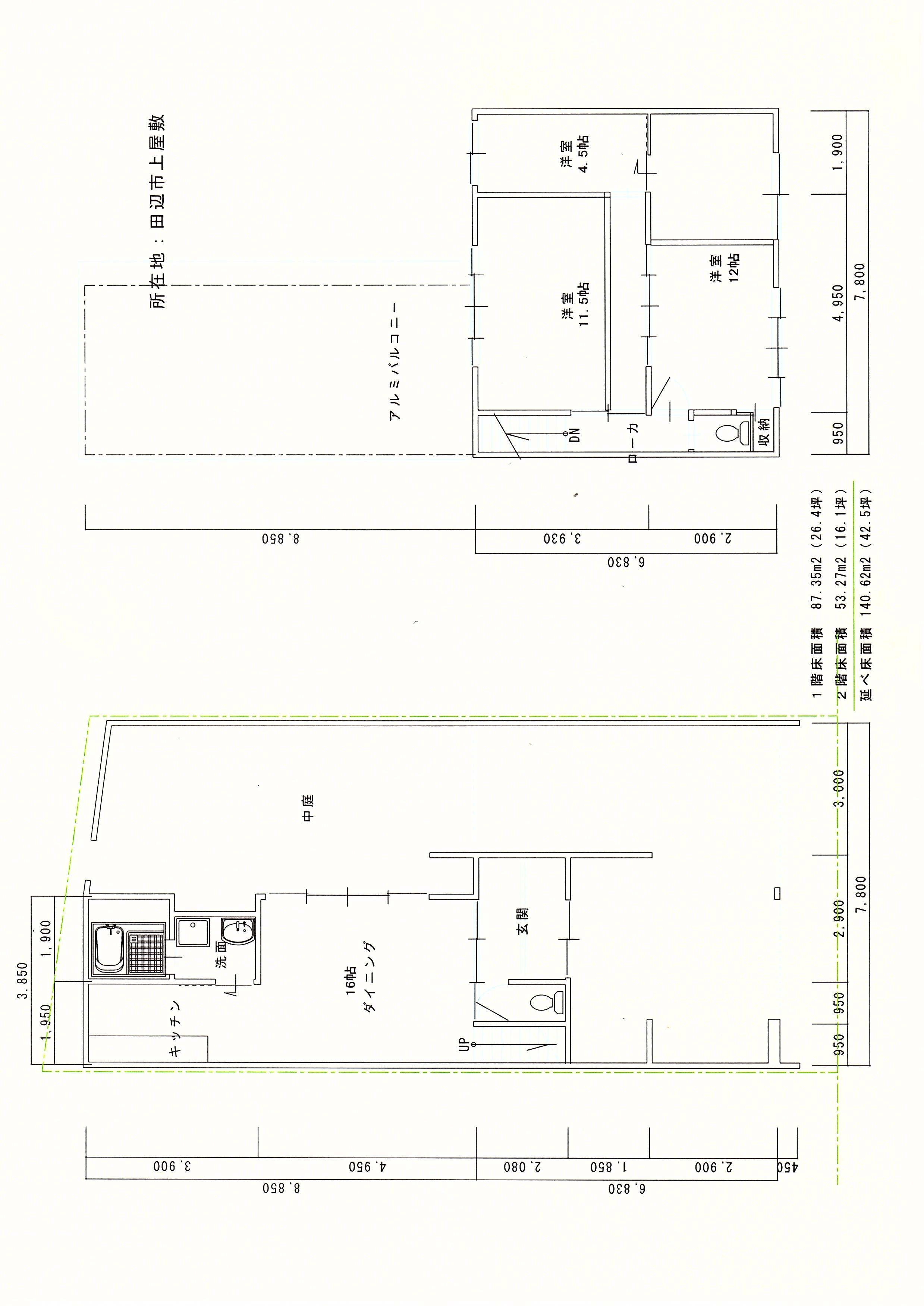
田辺市東陽38番1号 |
| 交 通 |
JR紀伊田辺駅駅までバス約5分 東本町バス停まで徒歩約3分 |
| 敷地面積 |
75.16u(22.73坪) |
|
| 価 格 |
|
|
| 間取り |
5DK 1階:DK10、和4.5、和6、風呂、トイレ(簡易水洗) 2階:和8、和6×2 |
| 建物面積 |
約99.17u(約30坪) |
| 駐車場 |
無 |
|
| 土地権利 |
所有権 |
| 地 目 |
宅 地 |
| 都市計画 |
区域内 |
| 築年月 |
築年月不詳 |
| 取引態様 |
仲 介 |
| 備 考 |
※建物未登記 |
| お問合せ先 |
岡田不動産
URL
E-mail:
〒646-0002
和歌山県田辺市上万呂5-24
TEL 0739-20-6815
FAX 0739-20-4370 |
|