電話でのお問い合わせは0739-20-6815
〒646-0002 和歌山県田辺市上万呂5‐24
| 名称 | 田辺市むつみ戸建 【成約済】 | |
|---|---|---|
| 外観・間取り図 | ![]() |
![]() |
| 位置図 | ||
| 所在地 | 田辺市むつみ14番 | |
| 交 通 | JR紀伊田辺駅 | |
| 敷地面積 | 100.08u(30.27坪) | |
| 価 格 | ||
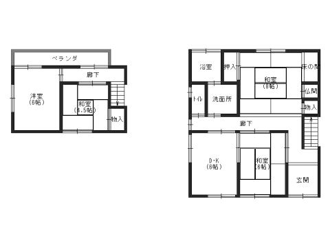
| 間取り | 4DK 1階:DK6、和8、和6、浴室、洗面脱衣、トイレ 2階:洋6、和4.5、ベランダ |
|
| 建物面積 | 82.80u(25.04坪) 1階:59.62u 2階:23.18u | |
| 駐車場 | 有:1台 | |
| 築年月 | 昭和61年3月 | |
| 構 造 | 木造瓦葺2階建 | |
| 土地権利 | 所有権 | |
| 地 目 | 宅 地 | |
| 都市計画 | 区域内 | |
| 用途地域 | 第一種住居 | |
| 建ぺい率 | 60% | |
| 容積率 | 200% | |
| 接道状況 | 北東側公道 幅員約4.2m | |
| 設 備 | 水道:公営 排水:浄化槽 電気:関西電力 ガス:プロパン | |
| 取引態様 | 仲 介 | |
| 備 考 | ・海抜約28.9m!! ※引渡し日:要相談 |
|
| お問合せ先 | 岡田不動産 URL E-mail: 〒646-0002 和歌山県田辺市上万呂5-24 TEL 0739-20-6815 FAX 0739-20-4370 |
|