| 名称 |
たきない町診療所 |
|
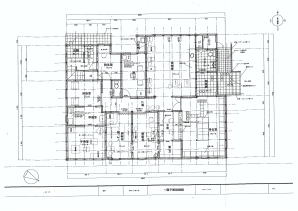
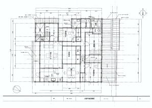
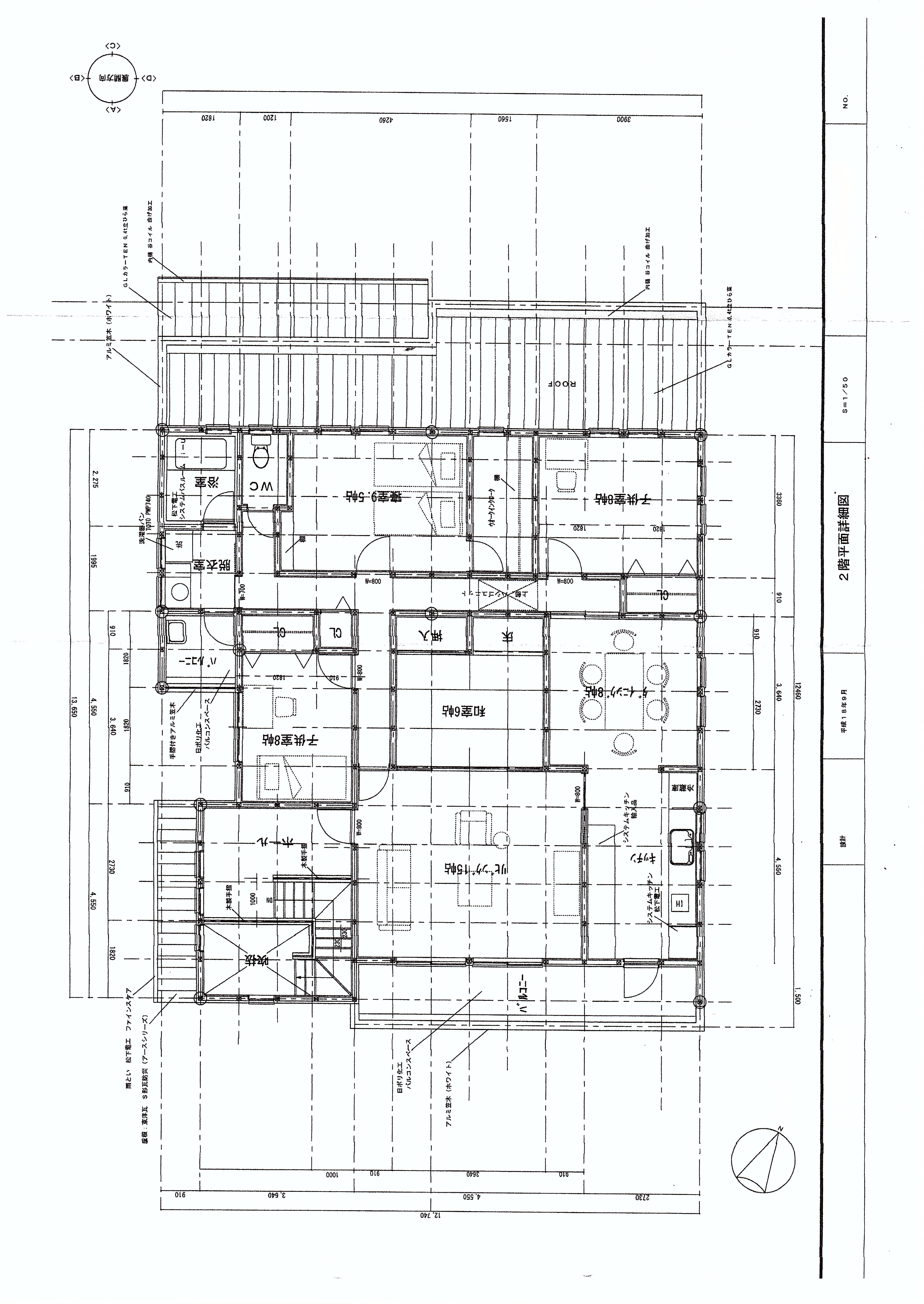
| 外観・間取り図 |

外観

駐車場 |

1階間取り

2階間取り |
| 位置図 |
|
| 所在地 |
田辺市たきない町 |
|
| 交 通 |
JR紀伊田辺駅よりバス約16分 医療センター前バス停まで徒歩約1分 |
| 価 格 |
|
|
| 種 別 |
居宅・診療所 |
|
| 敷地面積 |
700.43u(211.88坪) |
|
| 建物面積 |
1階:192.11u 2階:145.65u 延床面積:337.76u(102.17坪) |
| 構 造 |
木造かわらぶき2階建 |
| 築年月 |
平成19年3月 |
| 土地権利 |
所有権 |
| 地 目 |
宅地 |
| 用途地域 |
第一種中高層住居専用地域 |
|
| 建ぺい率 |
60% |
|
| 容積率 |
200% |
| 接道状況 |
北側公道 幅員約13m |
| 設 備 |
水道:公営 電気:関西電力 排水:浄化槽 |
| 取引態様 |
仲 介 |
| 備 考 |
※広い駐車場付き!! |
| お問合せ先 |
岡田不動産
URL
E-mail:
〒646-0002
和歌山県田辺市上万呂5-24
TEL 0739-20-6815
FAX 0739-20-4370 |
|